RIVERVIEW RD

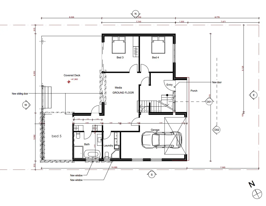
Our brief was to bring this 70's house uptodate, to create a home suitable for a family with late teenage boys and to take advantage of the beautiful Pittwater views.  The original double storey rendered brick house had undergone a number of ad-hoc renovations over the years,  and comprised 3 bedrooms, open plan kitchen living, media room, and 2 bathrooms above a tandem garage on a small level block on the low side of Riverview Rd. 

The family had recently downsized but with 2 boys at University, still living at home, and frequent visitors from the UK, they still required 4 bedrooms, an office and a separate living space for the young adults.   The challenge was to reorganise the internal spaces to create sufficient bedrooms, living spaces, and bathrooms for the family, without extending the footprint of the house which was on a small 557sqm block.    

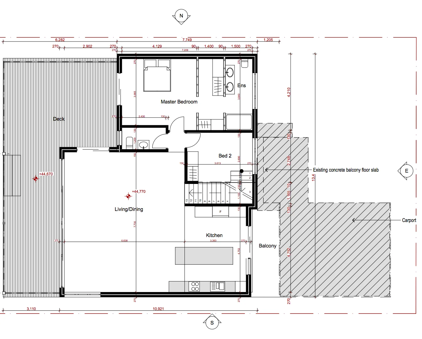
Whilst the open plan living space on the upper level was an adequate space, the original ceiling height felt so low it dominated the space to the point of being uncomfortable.   The old tiled roof was replaced with a lighter metal roof and structural changes enabled a 'cathedral' ceiling to be created transforming the main living area. However, the low ceiling height could not be changed in all areas due to engineering and budget constraints, and so to create a sense of higher ceilings, all internal doors were extended the full height to the ceiling; ceiling fans were inset to add height and interest, not just for practical reasons.  

The dated and impractical kitchen was replaced with a modern bespoke kitchen, with extensive storage, a central island bench, a sophisticated combination of charcoal timber veneer, matt white and marble inspired caesarstone statuario maximus.   Brushbox floors were sanded and polished with a more modern natural finish, and terracotta tiled floors were replace with stone throughout the ground level.  

The original front entry was small, dated and challenging, with a narrow staircase starting right at the front door, and offered a very poor introduction to the home.  So space was harvested from one of the oversized bedrooms into the hall, the front door widened and relocated to the right for better presentation.   The old staircase was transformed by replacing the treads with wider Brushbox timber and polished steel risers, to give the impression of a floating stair.  The front facade of the house was given a more modern look with a natural stone feature wall, a decorative steel balcony and a neutral colour scheme. 

The final design doesn't seek to hide its 1970's origin, but embrace it behind more modern finishes and proportions.  The internal layout comprises 4 bedrooms, 3.5 bathrooms, 2 separate living spaces and an office with only a minor increase to the footprint of the house.  Both living spaces and 3 of the bedrooms now all have Pittwater views.